Die Meldung in Bildern
Tunnel und Serpentinen
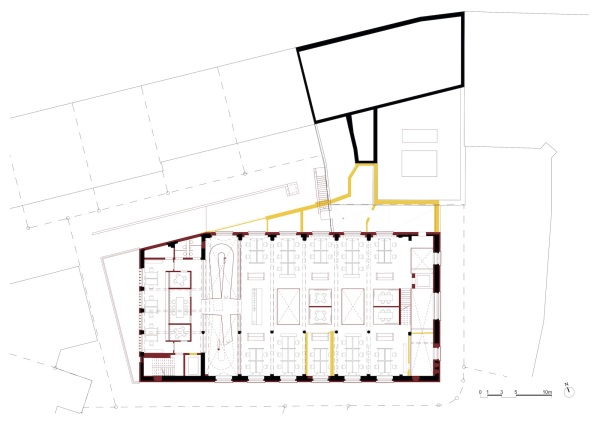
Umbau in Zürich von Burkhalter Sumi
Bild 37/42
Grundriss 1.OG
Bild: Burkhalter Sumi Architekten