Die Meldung in Bildern
Gemischt im alten Industriequartier
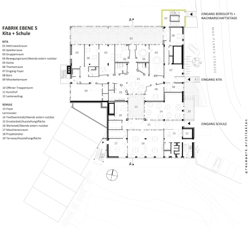
Umbau in Wuppertal von raumwerk.architekten
Bild 15/17
Grundriss Ebene 5
Bild: raumwerk.architekten