Die Meldung in Bildern
Gemischt im alten Industriequartier
Umbau in Wuppertal von raumwerk.architekten
Bild 14/17
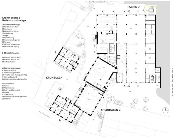
Grundriss Ebene 3
Bild: raumwerk.architekten