Die Meldung in Bildern
Kunstbezirk im Wandel
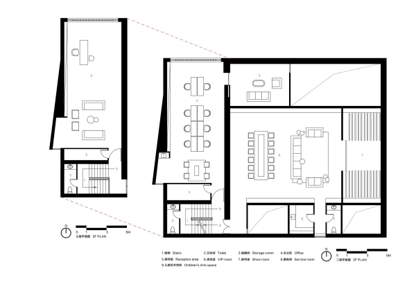
Umbau in Peking von Archstudio
Bild 26/31
Grundriss Obergeschoss
Bild: Archstudio