Die Meldung in Bildern
Kunstbezirk im Wandel
Umbau in Peking von Archstudio
Bild 25/31
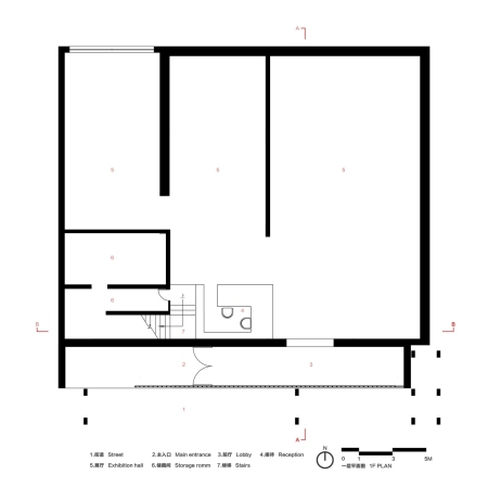
Grundriss Erdgeschoss
Bild: Archstudio