Die Meldung in Bildern
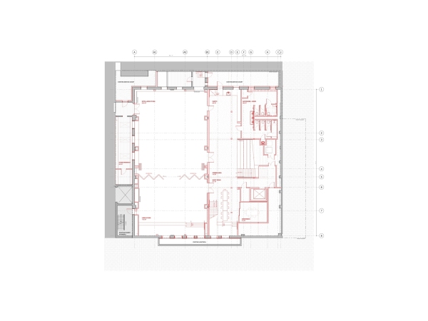
Von der Metallgießerei zum Theater
Umbau in New York von CO Adaptive
Bild 23/30
Grundriss Untergeschoss
Bild: CO Adaptive