Die Meldung in Bildern
Von der Metallgießerei zum Theater
Umbau in New York von CO Adaptive
Bild 22/30
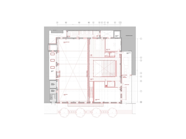
Grundriss Erdgeschoss
Bild: CO Adaptive