Umbau eines Reihenhauses in London von Khan Bonshek
Bild 17/19
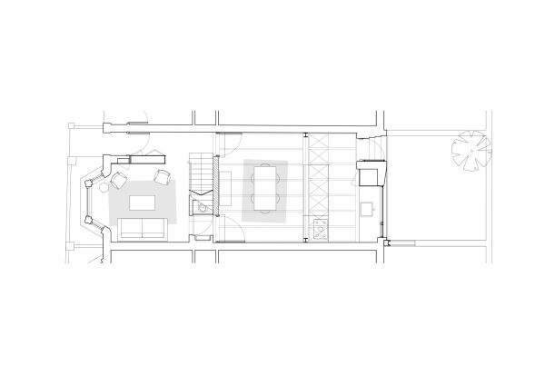
Grundriss Erdgeschoss
Bild: Khan Bonshek