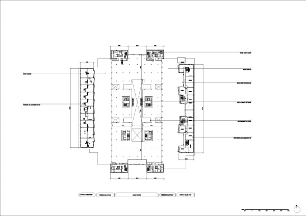
Umbau der Battersea Power Station durch Wilkinson Eyre
Bild 22/29
Grundriss Regelgeschoss
Bild: Wilkinson Eyre