Supermarkt in Nauen von ZRS Architekten Ingenieure
Bild 19/25
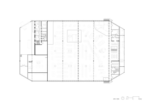
Grundriss 1. Obergeschoss (Galeriegeschoss)
Bild: ZRS Architekten Ingenieure