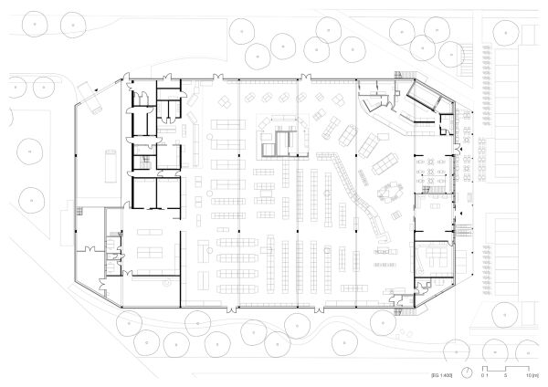
Supermarkt in Nauen von ZRS Architekten Ingenieure
Bild 18/25
Grundriss Erdgeschoss
Bild: ZRS Architekten Ingenieure