Studio Woodroffe Papa und Poggi in London
Bild 34/38
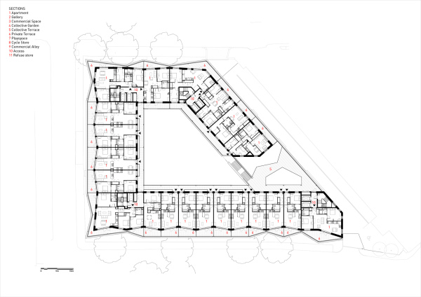
Typisches Obergeschoss
Bild: Studio Woodroffe Papa