Die Meldung in Bildern
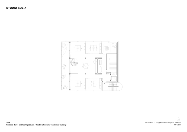
Büro mit Wohnoption
Studio Sozia in Breisach am Rhein
Bild 25/30
Grundriss 1. OG
Bild: Studio Sozia