Die Meldung in Bildern
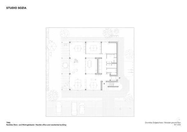
Büro mit Wohnoption
Studio Sozia in Breisach am Rhein
Bild 24/30
Grundriss EG
Bild: Studio Sozia