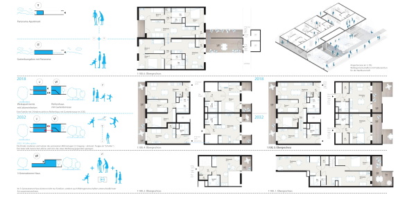
Wohnungstypen im Riegel Konzept der „Jokerwohnungen“

Bild 27/36

Wohnungstypen im Riegel Konzept der „Jokerwohnungen“

Bild: Studio Vlay Streeruwitz