Studentenwohnheim von Atelier Kempe Thill in Berlin
Bild 26/31
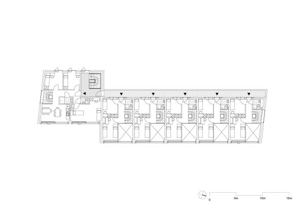
Grundriss 3. Obergeschoss
Bild: Atelier Kempe Thill