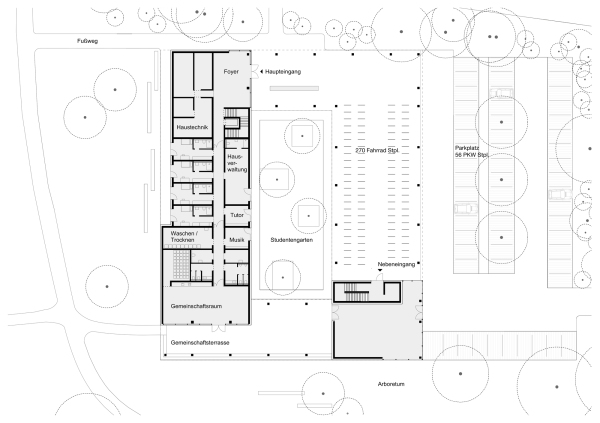
Studentenwohnheim in Göttingen von LIMA Architekten
Bild 14/23
Grundriss Erdgeschoss
Bild: LIMA architekten