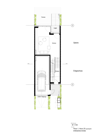
Up-Townhouse, Stadthaus, Finkenau, Hamburg, Wohnen, Tschoban Voss, Klinker

Bild 21/31

Haus 1, Erdgeschoss

Bild: Tschoban Voss Architekten