Die Meldung in Bildern
Zwischen zwei Straßen
Sozialwohnungsbau in Paris von MAO
Bild 26/32
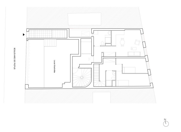
Grundriss Erdgeschoss West