Die Meldung in Bildern
Zwischen zwei Straßen
Sozialwohnungsbau in Paris von MAO
Bild 25/32
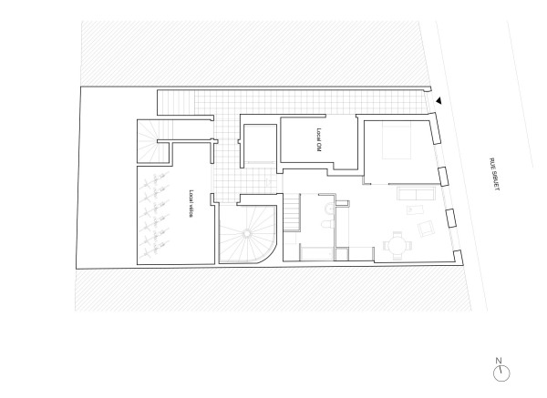
Grundriss Erdgeschoss Ost