Die Meldung in Bildern
Holz und Sonnenglut
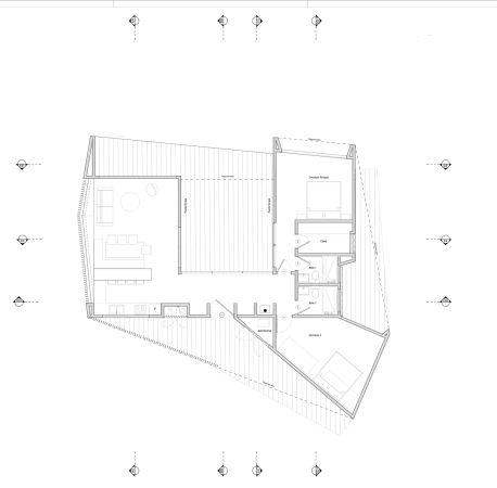
Sommerhaus in Chile von Worc Arquitectos
Bild 23/31
Grundriss
Bild: Worc Arquitectos