Schulhaus in Weinfelden von Isler Gysel Architekten
Bild 31/33
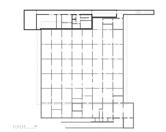
Grundriss Untergeschoss mit dem Notspital
Bild: Isler Gysel Architekten