Die Meldung in Bildern
Dorf in der Stadt
Schule in Nürnberg von Lederer Ragnarsdóttir Oei
Bild 14/23
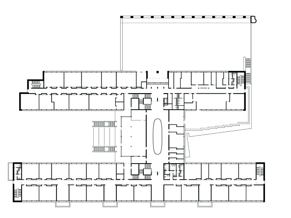
Grundriss 1. Obergeschoss
Bild: LRO