Sanierung und Erweiterung in Barcelona von SUMO Arquitectes
Bild 18/29
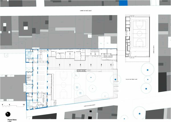
Lage und Grundriss Erdgeschoss
Bild: SUMO Arquitectes