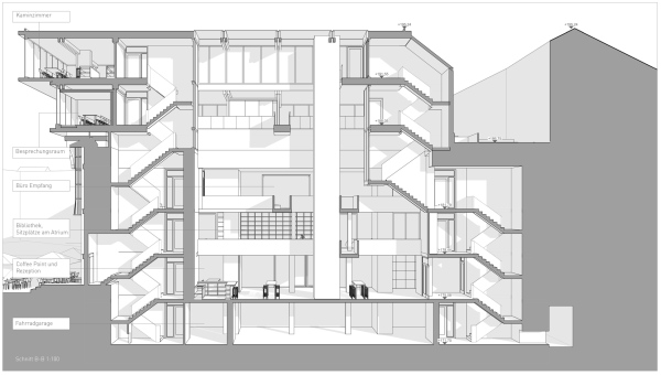
2. Preis: Kresings Architektur, Längsschnitt

Bild 33/44

2. Preis: Kresings Architektur, Längsschnitt

Bild: Kresings Architektur