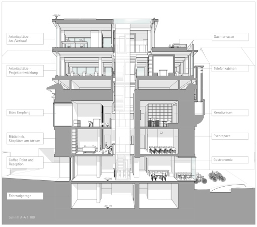
2. Preis: Kresings Architektur, Querschnitt

Bild 32/44

2. Preis: Kresings Architektur, Querschnitt

Bild: Kresings Architektur