Restaurantumbau von Hitzig Militello in Buenos Aires
Bild 26/30
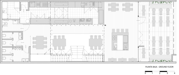
Grundriss Erdgeschoss
Bild: Hitzig Militello Arquitectos