Die Meldung in Bildern
Mit der Küche zur Straße
Reihenhaus in Montreal
Bild 21/23
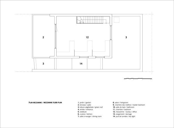
Dachgeschoss
Bild: NatureHumaine