Die Meldung in Bildern
Mit der Küche zur Straße
Reihenhaus in Montreal
Bild 20/23
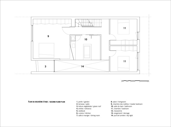
Obergeschoss
Bild: NatureHumaine