Die Meldung in Bildern
Mit der Küche zur Straße
Reihenhaus in Montreal
Bild 18/23
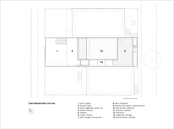
Lageplan
Bild: NatureHumaine