Die Meldung in Bildern
Mit der Küche zur Straße
Reihenhaus in Montreal
Bild 19/23
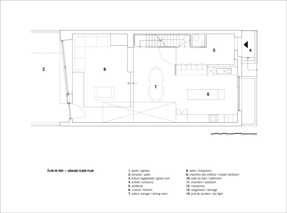
Erdgeschoss
Bild: NatureHumaine