Die Meldung in Bildern
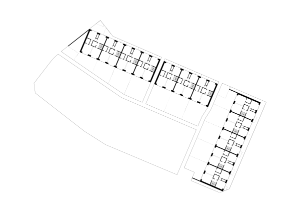
Zwölf vom gleichen Schlag
Reihenhäuser in Malmö von Förstberg Ling
Bild 19/25
Grundriss Erdgeschoss
Bild: Förstberg Ling