Die Meldung in Bildern
Haus mit guten Manieren
Reihenendhaus in London von Studio Surman Weston
Bild 13/17
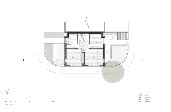
Grundriss OG
Bild: Studio Surman Weston