Die Meldung in Bildern
Haus mit guten Manieren
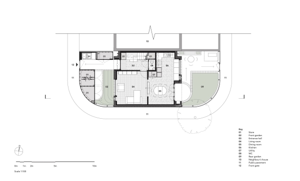
Reihenendhaus in London von Studio Surman Weston
Bild 12/17
Grundriss EG
Bild: Studio Surman Weston