Die Meldung in Bildern
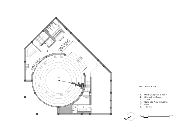
Fünfeck um Kreis
Privates Kunstzentrum von Neri & Hu in China
Bild 28/33
Grundriss EG
Bild: Neri & Hu Architects