Primarschule von Weyell Zipse Architekten in Zürich
Bild 31/37
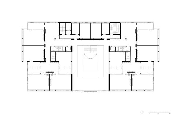
Grundriss 2. Obergeschoss
Bild: Weyell Zipse Architekten