Primarschule von Weyell Zipse Architekten in Zürich
Bild 30/37
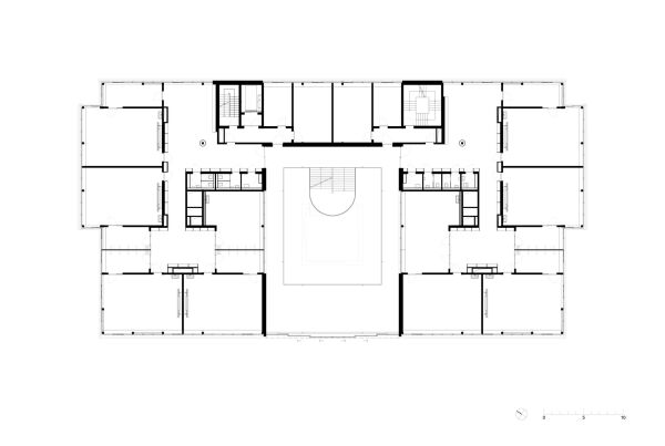
Grundriss 1. Obergeschoss
Bild: Weyell Zipse Architekten