Bild 28/66
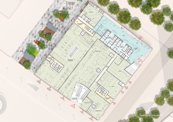
3. Preis: Jean-Paul Viguier et Associes Architecture et Urbanism (Paris), Grundriss EG
Bild: Jean-Paul Viguier et Associes Architecture et Urbanism
Bild 28/66
3. Preis: Jean-Paul Viguier et Associes Architecture et Urbanism (Paris), Grundriss EG
Bild: Jean-Paul Viguier et Associes Architecture et Urbanism