Nachverdichtung von Winking Froh in Berlin-Lichtenberg
Bild 7/9
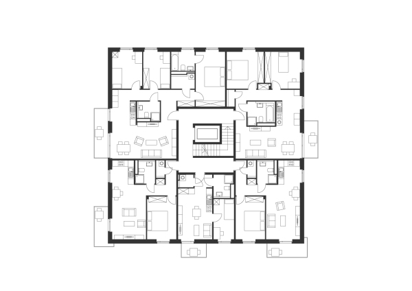
Grundriss Regelgeschoss
Bild: Winking Froh