Die Meldung in Bildern
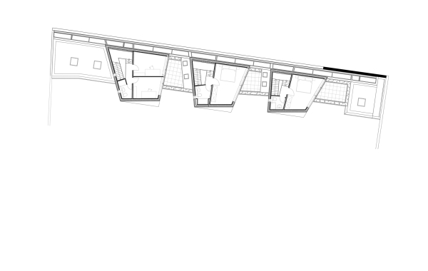
Präzises Implantat
Nachverdichtung in München von kandlerundmack architekten
Bild 12/14
Bild: kandlerundmack