Die Meldung in Bildern
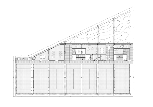
Kathedrale des Sports
NP2F in Bordeaux
Bild 26/30
4. Obergeschoss
Bild: NP2F