Die Meldung in Bildern
Des Kaisers altes Porzellan
Museum in Jingdezhen von Studio Zhu-Pei
Bild 22/28
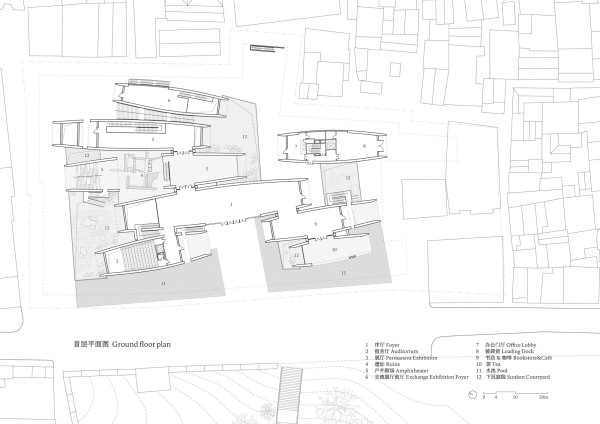
Grundriss EG
Bild: Studio Zhu-Pei