Mixed-Use von Hild und K im Münchner Werksviertel
Bild 27/35
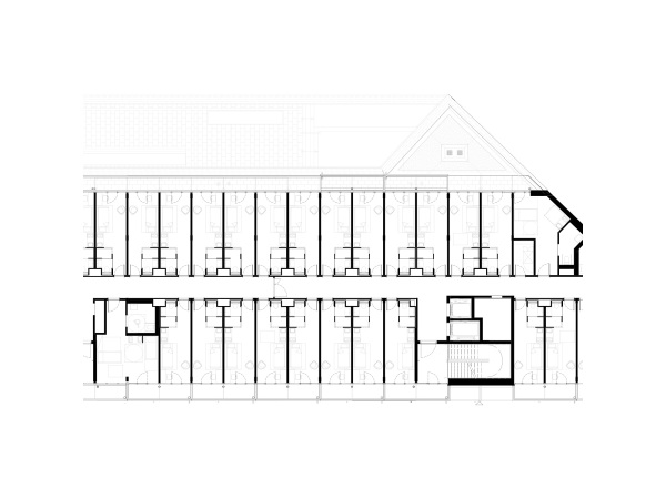
Grundriss 4. Obergeschoss
Bild: Hild und K