Mixed-Use von Hild und K im Münchner Werksviertel
Bild 26/35
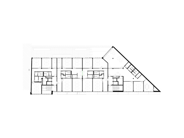
Grundriss 3. Obergeschoss
Bild: Hild und K