Die Meldung in Bildern
Balkone in Birsfelden
Mehrfamilienhaus bei Basel von Volpatohatz
Bild 18/24
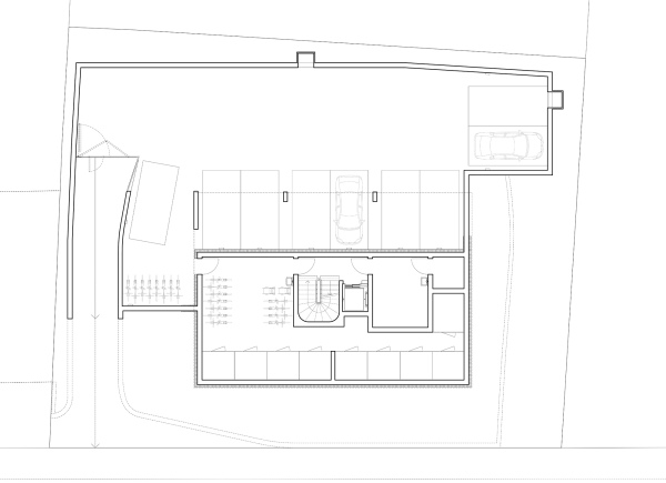
Untergeschoss
Bild: VOLPATOHATZ