Die Meldung in Bildern
Balkone in Birsfelden
Mehrfamilienhaus bei Basel von Volpatohatz
Bild 19/24
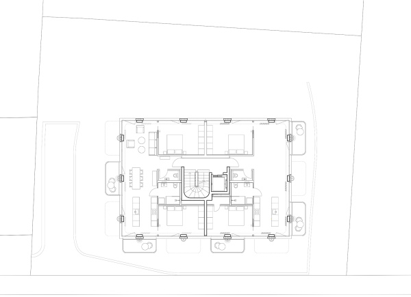
Regelgeschoss
Bild: VOLPATOHATZ