Die Meldung in Bildern
Bildhaueratelier mit Gästezimmern
Kulturzentrum von 2001 in Rümelingen
Bild 36/40
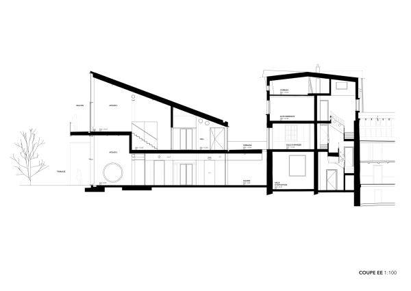
Längsschnitt E
Bild: 2001 TBSI