Kultur- und Lernzentrum von Studio SAAR in Udaipur
Bild 26/33
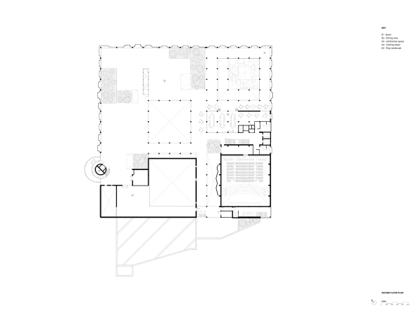
Grundriss 2. Obergeschoss
Bild: Studio SAAR