Kultur- und Lernzentrum von Studio SAAR in Udaipur
Bild 25/33
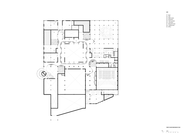
Grundriss 1. Obergeschoss
Bild: Studio SAAR