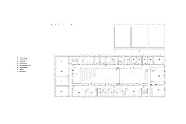
Konservatorium in Blagnac von ppa architectures
Bild 16/20
Grundriss Obergeschoss
Bild: ppa architectures